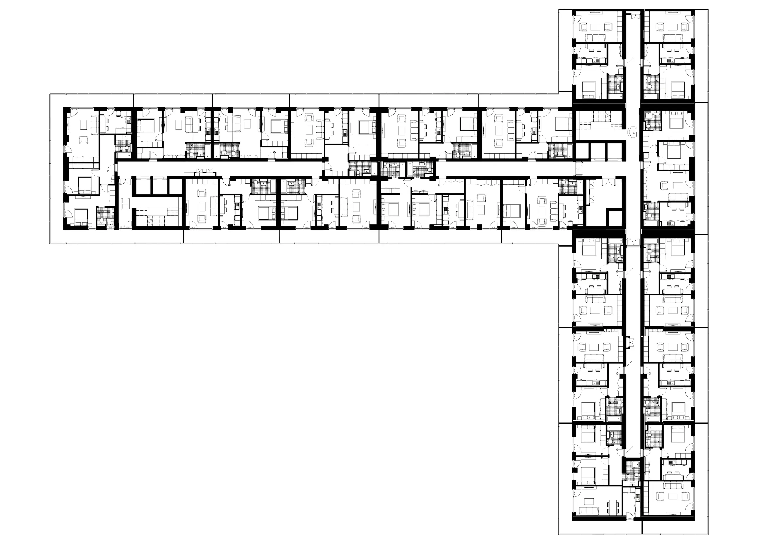
Etaj 6 – Horizon City

Alte apartamente în

Horizon City, Etaj 6

solicită
ofertă DE LANSARE

Bd. Pipera nr.2